Description
Manderley Estates
House -
Manderley Estates

AVAILABLE HOMES AND LOTS
Coming Soon
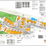
PLAT MAPS
Coming Soon
HOA INFORMATION
Coming Soon
LOCATION
Coming Soon
Property Features
- House
- About

